Pozo de registro modular de dos piezas de HDPE de 16 lados | tubería subterránea de la estación de combustible y gestión de líquidos industriales

Hogar / Productos / Productos de protección ambiental de la UST / Operación de pozos de registro de PE Pozos/cámaras / Pozo de registro modular de dos piezas de HDPE de 16 lados | tubería subterránea de la estación de combustible y gestión de líquidos industriales

Pozo de registro modular de dos piezas de HDPE de 16 lados | tubería subterránea de la estación de combustible y gestión de líquidos industriales

Pozo de registro modular de dos piezas de HDPE de 16 lados | tubería subterránea de la estación de combustible y gestión de líquidos industriales

El pozo de registro modular de HDPE de dos piezas RFMOW-1464 está diseñado para estaciones de combustible y sistemas de líquidos industriales donde la durabilidad, la flexibilidad y el fácil mantenimiento son fundamentales. A nivel mundial, este producto es reconocido por múltiples nombres dependiendo de los estándares regionales y de la industria. En las regiones de habla hispana se le conoce como “Pozo operativo HDPE modular de 16 caras,” en alemán como “Modularer HDPE 16-seitiger Schacht,” en francés como “Puits opérationnel HDPE modulaire à 16 faces,” y en Italia como “Pozzetto operativo HDPE modulare a 16 lati.” Todas estas designaciones describen una solución de acceso subterráneo de alta resistencia ideal para tuberías, válvulas y conexiones de sumideros.

Construido con polietileno de alta densidad, el RFMOW-1464 combina una resistencia química superior, una excelente capacidad de sellado y una integridad estructural a largo plazo. Su diseño de dos piezas permite instalar las secciones superior e inferior por separado, proporcionando la máxima flexibilidad para la instalación en condiciones de sitio restringidas o complejas. La estructura modular también simplifica la manipulación in situ, los reemplazos parciales y el mantenimiento futuro sin la necesidad de quitar todo el pozo de registro.

La configuración de brida exterior mejora la fijación segura a las tuberías subterráneas al tiempo que garantiza un sellado confiable contra la entrada de tierra y agua. Esta configuración protege componentes subterráneos críticos, incluidas válvulas de transferencia de combustible, instrumentos de monitoreo y sistemas de recuperación de vapor, lo que contribuye a la seguridad operativa y el cumplimiento normativo.

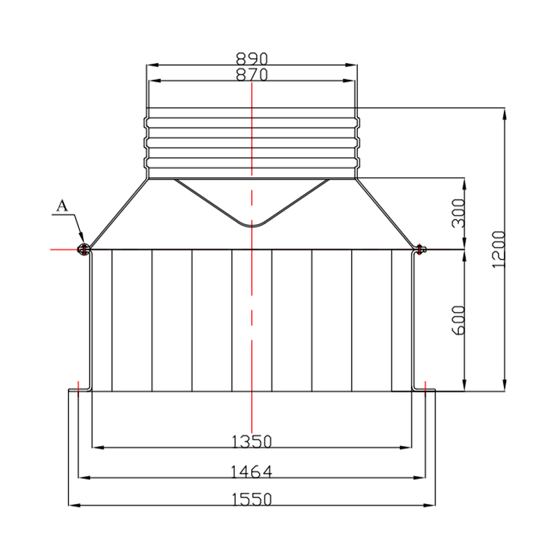
Especificaciones técnicas y opciones de personalización
Material: Polietileno de alta densidad (HDPE)
Método de instalación: Tipo de brida exterior
Orificio del perno de la brida Distancia de centro a centro: 1464 mm, ajustable
Orificios para pernos: estándar 32 orificios con 13 mm de diámetro, personalizables
Diámetro exterior del cuerpo: 1370 mm, diámetro interior: 1350 mm
Diámetro exterior del cuello: 890 mm, diámetro interior: 870 mm
Altura de la sección de conexión de tuberías: 600 mm
Altura total: 1200 mm
Forma: Polígono regular de 16 lados
Espesor de pared: 10 mm, personalizable bajo petición
Opciones de color: verde, blanco, negro, gris; colores personalizados y grabado de logotipo disponibles

Ventajas clave
Instalación modular flexible: el diseño de dos piezas permite instalar las secciones superior e inferior de forma independiente
Durable y resistente a los productos químicos: el HDPE proporciona un rendimiento a largo plazo en entornos hostiles
Excelente sellado: la brida exterior garantiza una conexión a prueba de fugas con los sistemas subterráneos
Fácil mantenimiento y reemplazo parcial: la estructura modular facilita futuras actualizaciones e inspecciones
Opciones personalizables: los orificios para pernos, el grosor de la pared, el color y la marca se pueden adaptar a los requisitos del proyecto
Compatibilidad internacional: Diseñado para uso global en estaciones de combustible, tuberías de fluidos industriales y sistemas de almacenamiento de productos químicos

La serie de pozos de registro RFMOW-1464 ofrece una solución confiable, modular y eficiente para tuberías subterráneas de estaciones de combustible y gestión de líquidos industriales. Su estructura de dos piezas, geometría de 16 lados y diseño de brida exterior maximizan la flexibilidad de instalación, la seguridad operativa y la comodidad de mantenimiento.

  • Especificación
  • Contáctenos

Imagen real del producto y de la aplicación en campo:

RFMOW-1464 Pozo de registro de HDPE de dos piezas y 16 lados (sumidero de tanque) con brida exterior

Está diseñado para estaciones de servicio y sistemas de tuberías subterráneas que requieren alta flexibilidad y durabilidad. La estructura de dos piezas permite la instalación separada de las partes superior e inferior, lo que la hace ideal para entornos complejos o de espacio limitado. Fabricada en HDPE de alta resistencia, ofrece excelente resistencia química, rendimiento de sellado y larga vida útil. El diseño modular también simplifica el transporte y los ajustes en el sitio, al tiempo que permite un fácil mantenimiento y reemplazo parcial cuando sea necesario.

Especificaciones técnicas:
Material: Polietileno de alta densidad (HDPE)
Método de instalación: Tipo de brida exterior
Orificio del perno de la brida Distancia de centro a centro: 1464 mm, ajustable según sea necesario.
Orificios para pernos: generalmente 32 orificios con 13 mm de diámetro; personalizable bajo pedido.
Diámetro exterior del cuerpo: 1370 mm
Diámetro interior del cuerpo: 1350 mm
Diámetro exterior del cuello: 890 mm
Diámetro interior del cuello: 870 mm
Altura de la sección de conexión de la tubería: 600 mm
Altura total: 1200 mm
Forma: Polígono regular de 16 lados
Espesor de pared: 10 mm, Otros espesores Personalizable bajo petición.
Color: Verde, Blanco, Negro Gris, etc. Colores personalizados y grabado de logotipos disponibles bajo petición.

Acerca de Haibo
Zhejiang Haibo Equipo de Petróleo Co., Ltd.

Zhejiang Haibo Petroleum Equipment Co., Ltd., establecida en 2017, es una empresa certificada ubicada en el condado de Yongjia, ciudad de Wenzhou, provincia de Zhejiang—, reconocida mundialmente como la base de fabricación de equipos petroleros más grande del mundo y la conocida ciudad natal de bombas y válvulas en China.
Nuestros productos se utilizan ampliamente en sistemas de control de fluidos, sistemas de energía, sistemas de medición, sistemas de tuberías y sistemas hidráulicos, y prestan servicios a compañías petroleras, unidades militares, depósitos de petróleo, fabricantes de camiones cisterna y estaciones de servicio en todo el mundo. Provincia—reconocida mundialmente como la base de fabricación de equipos petroleros más grande del mundo y la conocida ciudad natal de bombas y válvulas en China.
En Haibo, contamos con el respaldo de un equipo de expertos senior de la industria con más de 20 años de experiencia profesional en los sectores de equipos petroleros y control de fluidos. Su profundo conocimiento técnico y su conocimiento de la industria garantizan que cada producto y solución que ofrecemos cumpla con los más altos estándares de calidad, confiabilidad y rendimiento.

Certificado de honor
  • Certificado de patente de modelo de utilidad
  • Certificado de patente de modelo de utilidad
  • Certificado de patente de modelo de utilidad
  • Certificado de patente de modelo de utilidad
Noticias